

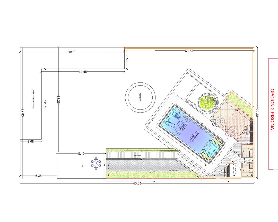
An incredibly lifelike, richly detailed, photorealistic aerial view of a modern residential backyard featuring a sleek, "L" shaped swimming pool. The scene is illuminated by the soft, diffused glow of a cloudy summer night, casting subtle shadows and highlighting the clean lines of the architecture and landscaping. The pool, with its crystal-clear azure water, is the focal point, complete with underwater lights that cast an ethereal blue luminescence. Scattered within the pool are figures enjoying a nocturnal swim, their forms fluid and relaxed. Surrounding the pool is a meticulously designed patio area paved with interlocking grey stones, interspersed with patches of lush, manicured greenery and a circular stone fire pit, where warm light suggests a gathering. The overall aesthetic is sleek and international, with clean geometric shapes and a harmonious blend of natural and man-made elements. The depth of field is sharp, capturing every detail from the textured paving to the subtle ripple of the water, evoking a sense of tranquil, sophisticated leisure.