Креативный


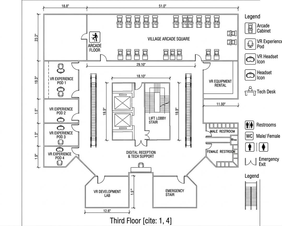
An incredibly lifelike, richly detailed, photorealistic floorplan photo of an indoor theme park on its third floor, set within a modern, eco-futurist cityscape. The scene is illuminated by diffused, midday summer light filtering through expansive, cloudy skies, creating a bright yet shadowless atmosphere, devoid of harshness. Captured with a wide-angle lens from a slightly elevated perspective, it emphasizes the clean lines, expansive spaces, and a harmonious integration of advanced technology with natural elements implied by the eco-futurist motif. The photograph reveals a large, open-plan "Village Arcade Square" occupying the upper section of the floor. Clusters of sleek, modern arcade cabinets, rendered in polished steel and featuring vibrant, yet muted, LED displays, are precisely arranged. Their surfaces reflect the ambient light, hinting at a durable, high-tech finish. Adjacent to this, "VR Experience Pods" are meticulously laid out along the left side of the floor. Each pod, appearing as a compact, private booth, contains minimalist seating and equipment, suggesting a focused, immersive user experience. The central area is dominated by the "Lift Lobby Stair" and "Digital Reception & Tech Support." The staircase, designed with a contemporary, open-riser aesthetic, suggests a material like brushed steel or polished concrete, contributing to the futuristic feel. The reception area features a clean, functional desk, subtly hinting at the presence of staff ready to assist. Surrounding these are areas designated for "VR Equipment Rental" and a "VR Development Lab," both appearing as organized, uncluttered spaces ready for use. The "Arcade Floor" is a distinct zone within the larger arcade square, marked by a stylized icon indicating its purpose. Further down, the "Emergency Stair" and two "Restrooms" (Male and Female) are clearly designated, adhering to functional design principles. The overall color palette is dominated by cool, neutral tones – grays from steel and concrete, whites from clean surfaces, and subtle metallic accents – punctuated by the implied soft glow of technological displays. The texture of the floor is smooth and seamless, possibly polished concrete or a durable composite material, reflecting the overall theme of modern, eco-conscious design. The composition is highly organized and geometric, with clear sightlines leading the viewer's eye through the various zones. The perspective offers a comprehensive overview of the floor's layout, showcasing the spaciousness and the logical flow between different attractions and facilities. The absence of people in the frame enhances the sense of a meticulously planned, ready-to-be-activated amusement park environment. The background, hinting at a cityscape beyond the interior through implied window placement, is softly out of focus, keeping the primary attention on the architectural and functional elements of the theme park floor.