ReRender

Частный Дом,
Очаровательная Готика
Оригинал
Source Image
Загружено
Сгенерированное(920x768)
source
2.43%
Result Images
Result Images
Result Images

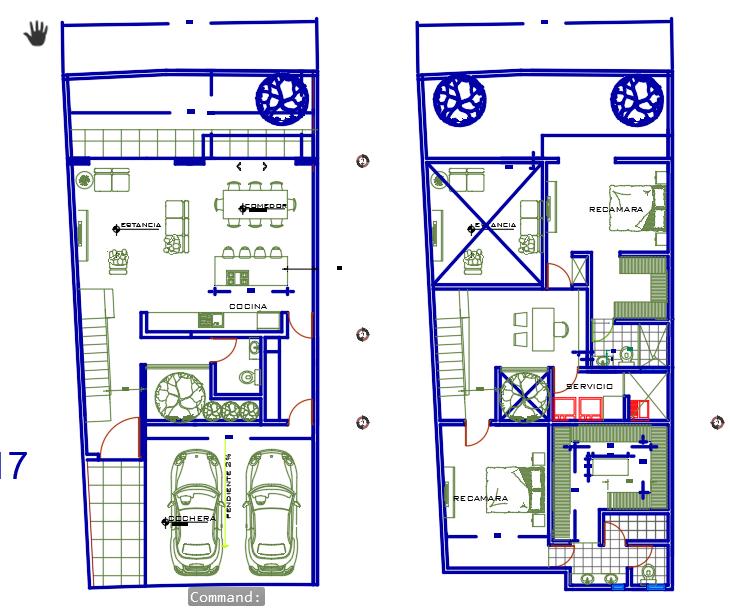
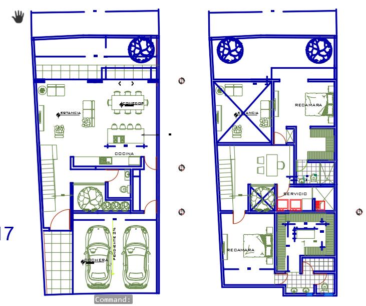
An incredibly lifelike, richly detailed, photorealistic floorplan photograph of a single-family home, with enchanting gothic architectural elements. The scene is illuminated by a soft, diffused overhead light, creating a calm and inviting atmosphere. Captured with a wide-angle lens, emphasizing the spaciousness of each meticulously designed room. The "ESTANCIA" (living room) opens into a formal dining area, both featuring the warmth of polished wooden plank flooring. Adjacent is the "COCINA" (kitchen), with sleek, cool-toned grey tile flooring and modern cabinetry. Descending the staircase reveals a lower level with a covered garage space for two vehicles, the concrete floor showing subtle textural variations. A small, enclosed courtyard, featuring lush greenery and a decorative tree, brings a sense of natural tranquility to the interior. Moving to the upper level, "RECAMARA" (bedrooms) offer a serene retreat, with continued wooden plank flooring and ample space. The "SERVICIO" (service area) and bathrooms are distinctly tiled with practical yet stylish grey tiles, hinting at functional durability. The exterior walls are elegantly outlined in dark lines, and the intricate details of windows and doorways are rendered with precision, suggesting a finely crafted gothic aesthetic throughout the entire structure. The overall composition offers a clear, comprehensive view of the home's layout, with a distinct sense of depth and perspective, allowing the viewer to effortlessly navigate through each meticulously planned space.


Use the extensionSketchUp
Follow usInstagramYouTubeLinkedIn
Join the discussionReddit