ReRender

Частный Дом,
Спокойный Скандинавский
Оригинал
Source Image
Загружено
Сгенерированное(1776x768)
source
4.21%
Result Images

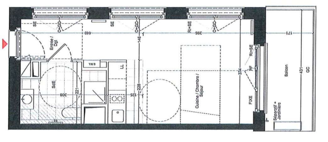
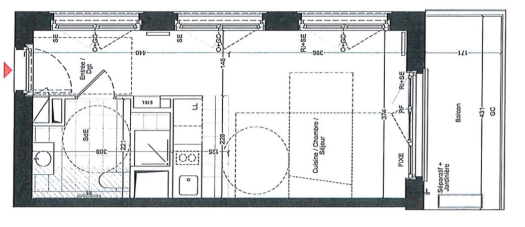
An incredibly lifelike, richly detailed, photorealistic floorplan photo of a single-family home with a serene Scandinavian aesthetic. The scene is illuminated by soft, diffused natural light, creating a bright and airy atmosphere. Captured with a wide-angle lens, emphasizing the minimalist design and clean lines characteristic of Scandinavian architecture. The layout reveals carefully considered spaces, from the compact yet functional entryway and bathroom to the open-plan kitchen, living, and dining area. Textures are implied through subtle shading and line work, suggesting smooth, light-colored walls, polished wooden floors, and perhaps matte-finished cabinetry. The limited palette, likely consisting of whites, light grays, and natural wood tones, enhances the feeling of tranquility and spaciousness. Dimensions and labels are discreetly integrated, offering a clear understanding of the spatial relationships without detracting from the overall visual elegance. The composition is meticulously organized, presenting a blueprint for a harmonious and uncluttered living environment.


Use the extensionSketchUp
Follow usInstagramYouTubeLinkedIn
Join the discussionReddit