ReRender

Дата-Центр,
Стеклянный Минимализм
Оригинал
Source Image
Загружено
Сгенерированное(1120x768)
source
1.06%
Result Images
Result Images

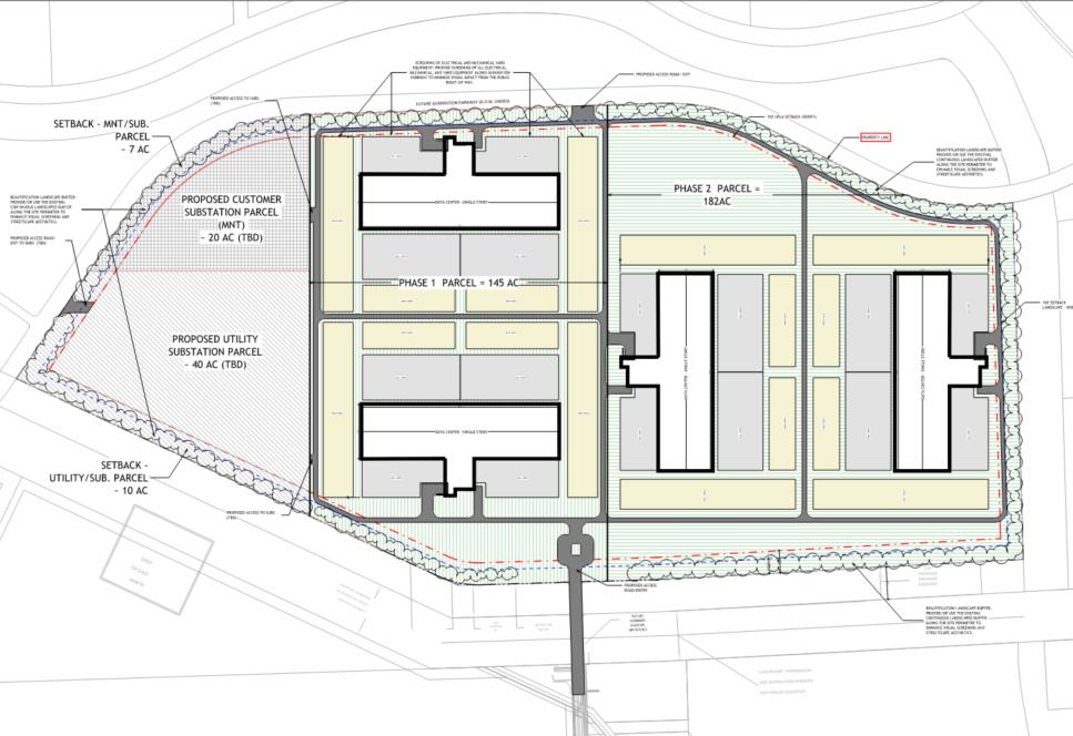
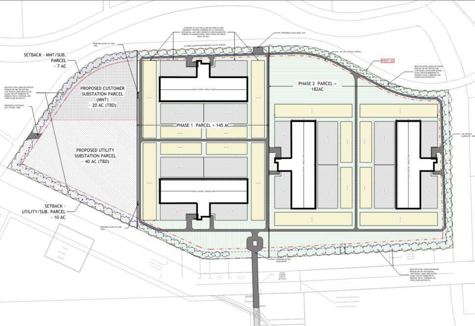
An incredibly lifelike, richly detailed, photorealistic, true top-down / orthographic aerial rendering of a data center campus in Houston, Texas. The scene is illuminated by neutral daytime Texas lighting, creating a clear and functional atmosphere without excessive shadows. Captured with an orthographic camera, emphasizing the precise geometry and ultra-high-resolution, photorealistic textures of asphalt roads, graded earth, stabilized turf, and the varied building materials. The campus features multiple hyperscale data center facilities, each meticulously adhering to the exact bold-outlined building footprints shown in the site plan. The "front of house" sections, facing the primary street, are articulated with light architectural concrete, insulated metal panels, and controlled glazing, subtly marked by canopies. The expansive "back of house" areas form the industrial core, characterized by minimal openings and light gray or off-white roofing with orderly rooftop equipment. Adjacent to the data halls are clearly defined mechanical yards housing organized arrays of cooling equipment on concrete pads, screened where appropriate, and meticulously laid out electrical yards with gravel ground cover, security fencing, and dense utility-grade equipment within a dedicated substation parcel. Internal roads and service drives follow the precise layout indicated, all rendered in realistic asphalt with curbing and subtle striping, while tree buffers are strategically placed along the perimeter only where specified. The overall composition is a highly ordered, utility-heavy industrial campus, devoid of decorative landscaping or extraneous elements, presenting a starkly realistic portrayal of operational infrastructure.


Use the extensionSketchUp
Follow usInstagramYouTubeLinkedIn
Join the discussionReddit