ReRender

Частный Дом,
Спокойный Скандинавский
Оригинал
Source Image
Загружено
Сгенерированное(1720x768)
source
3.26%
Result Images
Result Images
Result Images

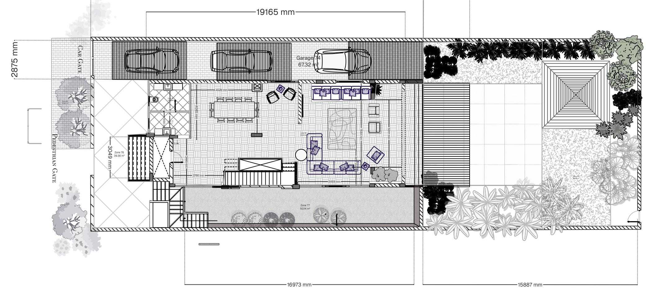
An incredibly lifelike, richly detailed, photorealistic aerial photograph of a modern single-family home and its landscaped garden. The scene is illuminated by bright midday sun on a clear autumn day, creating a serene, Scandinavian-inspired atmosphere. Captured with a medium-wide angle lens, the perspective offers a comprehensive view of the property. The main structure features large windows and a sleek, minimalist design. To the left, a side parking space, shaded by elegant wooden pergolas, accommodates three luxury vehicles, their metallic finishes reflecting the crisp daylight. Adjacent to the entrance is a pedestrian gate leading to a meticulously maintained pathway bordered by mature trees. The interior, visible through the open-plan layout, showcases a welcoming reception area with a warm, modern wooden floor, leading into a spacious living room furnished with contemporary seating and subtle decorative elements. A formal dining area, adjacent to the living space, is set with an impressive table and chairs, all contributing to an ambiance of sophisticated comfort. A grand staircase with luxurious marble steps ascends from the main floor. Beyond the living area, a paved patio extends into the backyard, featuring a sleek wooden pergola that transitions into a lush garden. The garden itself is a harmonious blend of textures and forms, with a striking geometric sun feature at its center. Lush greenery and a delicate glass house add pops of vibrant life against the muted tones of stone paving and gravel. The overall impression is one of refined tranquility and modern elegance, a perfect sanctuary bathed in the gentle light of an autumn afternoon.


Use the extensionSketchUp
Follow usInstagramYouTubeLinkedIn
Join the discussionReddit