ReRender

Ресторан,
Изгибистый Органический
Оригинал
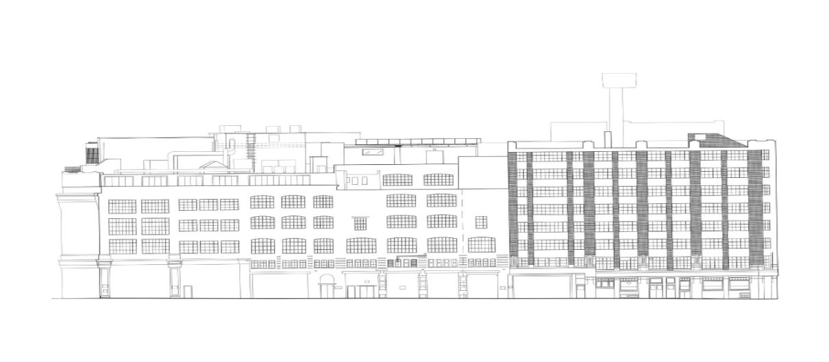
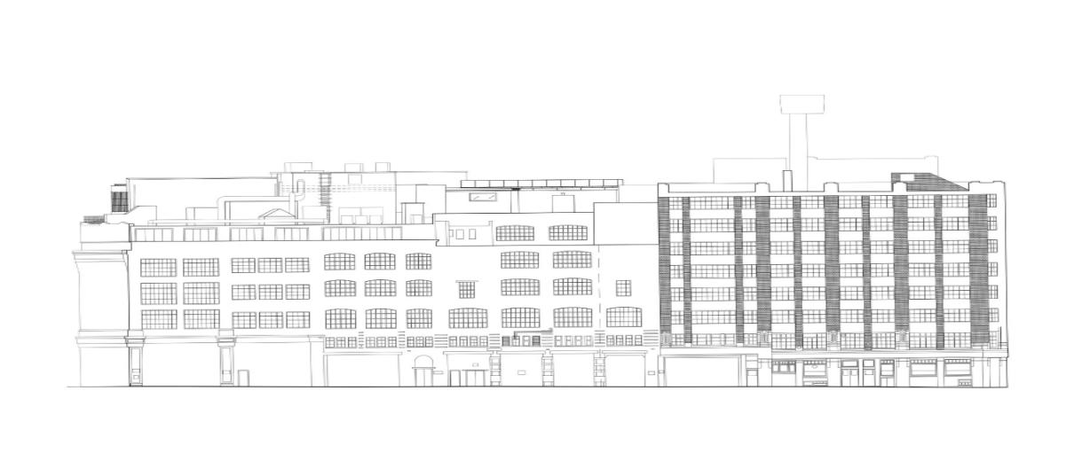
Source Image
Загружено
Сгенерированное(1760x768)
source
0.30%
Result Images
Result Images
Result Images
Показать больше

An incredibly lifelike, richly detailed, photorealistic architectural photograph of a commercial building's frontage, reimagined as a restaurant at night, set in a simple London environment. The scene is illuminated by the soft glow of warm, inviting interior lights spilling from the building's windows and the ambient, muted city lights, creating a slightly melancholic yet cozy atmosphere under a misty summer night sky. Captured with a wide-angle lens, emphasizing the interplay of textures between the light timber facade and hints of subtle blue accents, the curvaceous organic lines of the building's design are subtly visible, suggesting an oceanic theme without being overt. The misty conditions soften the surrounding cityscape, with only faint silhouettes of other buildings visible, and the wooden elements of the facade appear smooth and subtly reflective under the diffused light, contributing to a sophisticated yet understated aesthetic, with a shallow depth of field drawing focus to the restaurant's inviting entrance.


Use the extensionSketchUp
Follow usInstagramYouTubeLinkedIn
Join the discussionReddit